藏书网
千篇一律的户型!怎么做成独一无二!
设计师人厘米酱
2025-12-04 00:30:47
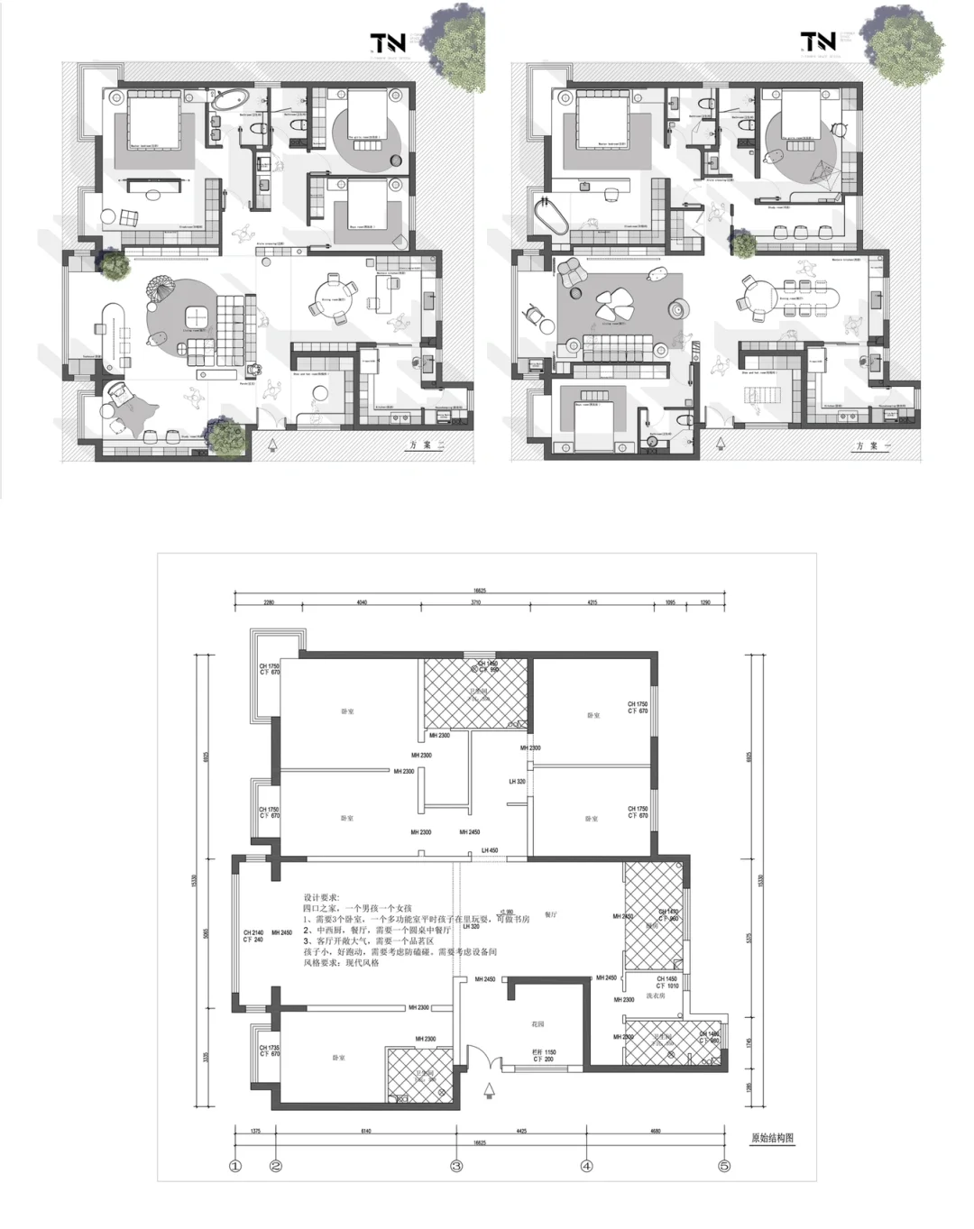
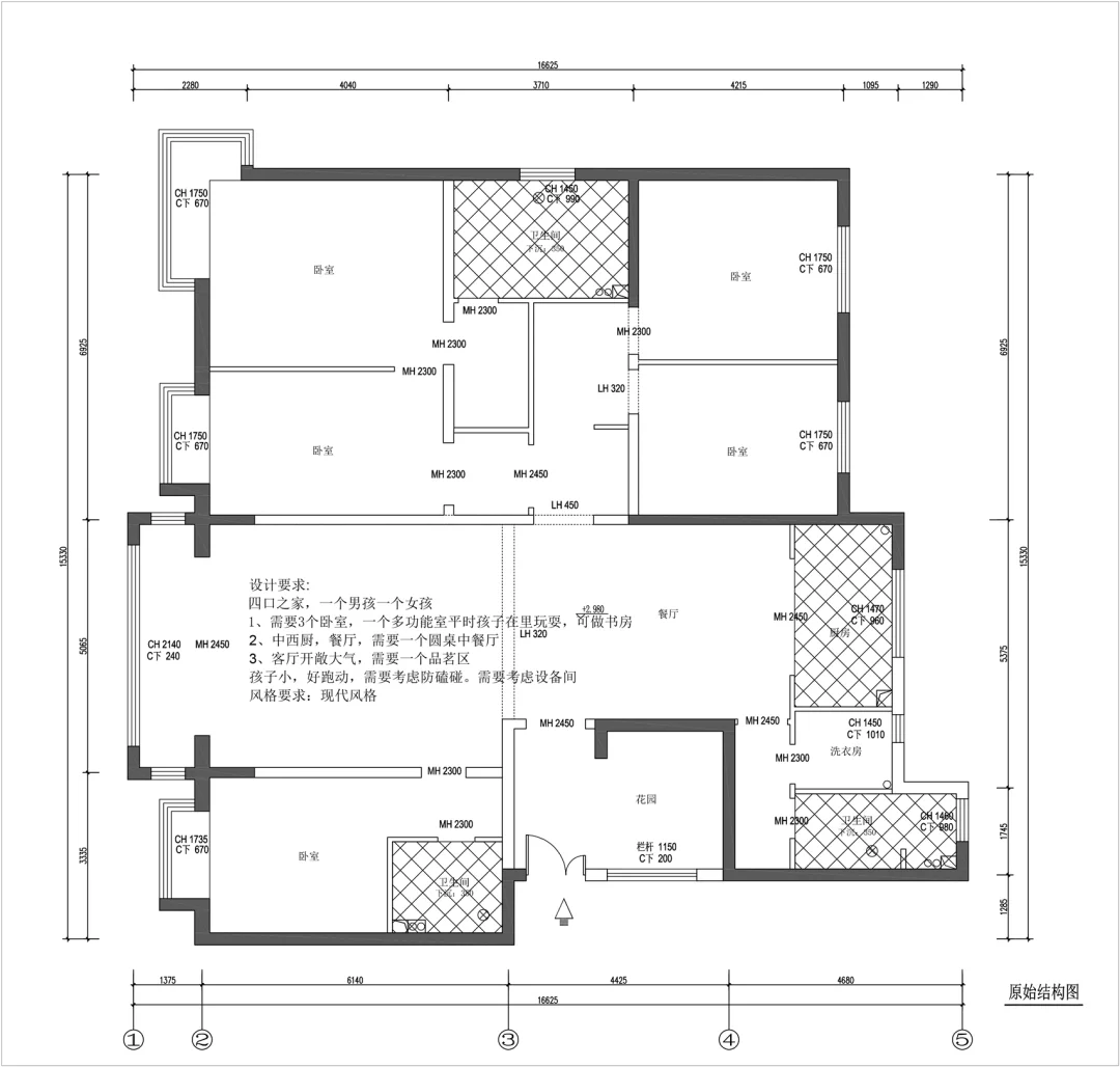
设计要求: 四口之家, 一个男孩,一个女孩 1、需要3个卧室,多功能室平时孩子在里玩耍,兼做书房 2、中西厨,餐厅,需要一个圆桌中餐厅 3、客厅开敞大气,需要一 个品茗区 孩子小,好跑动,需要考虑防磕碰。需要考虑设备间 风格要求:现代风格
0
阅读:7
设计师人厘米酱
感谢大家的关注
作者最新文章
1
100平方户型优化十个方案!还有一个放不下
2
100平方户型十个版方案!第一弹!
3
别墅设计
4
一个户型六版方案之二
5
一个户型六版方案!
6
户型优化升级之手绘
7
户型优化升级之我想要更多功能
8
户型优化升级之小小改造大大升级
9
自建房系列之这片自建都被承包设计了
10
自建房之CBD城中村自建房该怎么设计!
热门分类
推荐
热榜
军事
NBA
体育
社会
明星八卦
娱乐
财经
科技
汽车
历史
国际
游戏
动漫
公益
搞笑
商业
互联网
数码
国际足球
房产
家居
时尚
科学探索
职场
育儿
股票
教育
影视
情感
热点
中国军情
武器
中国南海
中国足球
亚洲杯
科比
综合体育
CBA
投资
大咖秀
外汇
创业
风口
SUV
豪车
概念车
优惠
新能源
美国
欧洲
朝日韩
俄罗斯
孕期
街拍
婚姻
正能量
家居
TOP
1
这个房子的设计有点奇葩!不得不感叹真是一个敢设计,一个敢建。
2
师傅在厨房修水管,女主人站在一旁。
3
这个地板是有老婆选的?我真无语了?
4
房顶贴瓷砖属实是头一次见,不得不说,一个敢设计,一个敢施工,不服不行啊![赞]
5
宅家自拍,温暖冬日,粉色床单,舒适生活温柔卧室自拍休闲卧室自拍温柔床榻自拍
6
这算不算是砌墙的天花板。
7
浙江温州一男子装修房子,找来砸墙师傅,一问需要2600元,男子为省下2600元砸
8
拍大腿,本来想翘板这个的,地天板了
9
有牛的地方风水特好!老牛吃嫩草,
10
浴室写真摄影分享欲室浴室氛围感写真酷感浴室写真浴室写真时尚浴室写真
家居
最新文章
1
有网友说,这样的公寓属于比较完美的,你认同不?
2
我的小公寓,一直租给一个年轻姑娘,月租1800,她住两年一直挺省心,昨天突然找我
3
这个地板是有老婆选的?我真无语了?
4
优雅气质,绿意盎然,古典与现代的完美融合。
5
宅家自拍,温暖冬日,粉色床单,舒适生活温柔卧室自拍休闲卧室自拍温柔床榻自拍
6
这面墙怪得很,缝里露出来的东西是什么?
7
拍大腿,本来想翘板这个的,地天板了
8
16岁烤鸡少年睡地板也要当老板目标迈巴赫!刷到深圳烤鸡少年的故事,直接转
9
浙江湖州,女子9年前花416000元买下120平方米的毛坯房,谁料,装修好入住9
10
男人是不是都这样?还是只有我老公这样?我老公有个习惯越来越严重,有事没事都要看到