藏书网
100平方户型十个版方案!第一弹!
设计师人厘米酱
2025-12-07 02:02:59
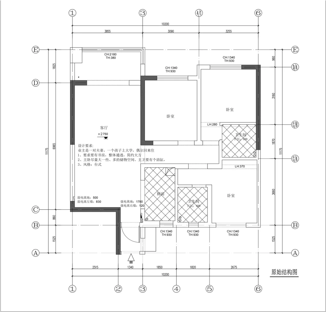
设计要求: 业主是个一对夫妇,一个孩子上大学,偶尔回来住 1、要求要有书房,整体通透,简约大方 2、主卧尽量大些、多的储物空间、主卫要有个浴缸 3、风格;简约现代
0
阅读:1
设计师人厘米酱
感谢大家的关注
作者最新文章
1
粉丝投稿户型优化系列
2
小户型更需要岛台!
3
70平方 旧房改造 户型优化升级
4
房子是什么?
5
60平方小户型优化
6
90平方 一对年轻夫妇的小三居室
热门分类
推荐
热榜
军事
NBA
体育
社会
明星八卦
娱乐
财经
科技
汽车
历史
国际
游戏
动漫
公益
搞笑
商业
互联网
数码
国际足球
房产
家居
时尚
科学探索
职场
育儿
股票
教育
影视
情感
热点
中国军情
武器
中国南海
中国足球
亚洲杯
科比
综合体育
CBA
投资
大咖秀
外汇
创业
风口
SUV
豪车
概念车
优惠
新能源
美国
欧洲
朝日韩
俄罗斯
孕期
街拍
婚姻
正能量
家居
TOP
1
这个房子的设计有点奇葩!不得不感叹真是一个敢设计,一个敢建。
2
师傅在厨房修水管,女主人站在一旁。
3
这个地板是有老婆选的?我真无语了?
4
房顶贴瓷砖属实是头一次见,不得不说,一个敢设计,一个敢施工,不服不行啊![赞]
5
宅家自拍,温暖冬日,粉色床单,舒适生活温柔卧室自拍休闲卧室自拍温柔床榻自拍
6
这算不算是砌墙的天花板。
7
浙江温州一男子装修房子,找来砸墙师傅,一问需要2600元,男子为省下2600元砸
8
拍大腿,本来想翘板这个的,地天板了
9
有牛的地方风水特好!老牛吃嫩草,
10
浴室写真摄影分享欲室浴室氛围感写真酷感浴室写真浴室写真时尚浴室写真
家居
最新文章
1
太后悔了,昨晚我和老公吵架,不让他进屋,他特别生气,晚上在沙发上睡觉了。到了半夜
2
有网友说,这样的公寓属于比较完美的,你认同不?
3
我的小公寓,一直租给一个年轻姑娘,月租1800,她住两年一直挺省心,昨天突然找我
4
这个地板是有老婆选的?我真无语了?
5
优雅气质,绿意盎然,古典与现代的完美融合。
6
宅家自拍,温暖冬日,粉色床单,舒适生活温柔卧室自拍休闲卧室自拍温柔床榻自拍
7
这面墙怪得很,缝里露出来的东西是什么?
8
拍大腿,本来想翘板这个的,地天板了
9
16岁烤鸡少年睡地板也要当老板目标迈巴赫!刷到深圳烤鸡少年的故事,直接转
10
浙江湖州,女子9年前花416000元买下120平方米的毛坯房,谁料,装修好入住9