ADDRESS. 温州瓯江峯汇私宅
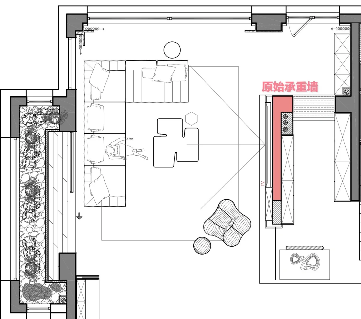
项目都要落地了,万万没想到心心念念的悬空电视背景竟然是假悬空?!
原来是设计师直接把电视墙做到打不掉的承重墙上,下面做镂空镜子模仿悬空的效果。设计师还说,这样就必不可能翻车了!来给大家解析下我们的做法吧:
把大理石电视柜换成地台,同样能够放置物品但完全不会有下坠风险,美观简洁;大理石背景墙固定墙面焊死,背靠实心承重墙内部做木基础表面钉大理石;抬高部分做镜面造型,仿造悬空效果,同时能够保证安全稳固。
需要注意的是:电视需要提前调整好观看视角预留尺寸;为保证美观电线要做好隐藏工作哦[自拍R]







可爱至上主义者
这个下面是镜子,坐在沙发上会看到腿和脚吗