关于云湖别院的项目情况,之前笔记里已经大致聊过,今天讲讲售楼处和样板间的情况,直接看图说话走起。。。
图2,进售楼处之前经过的景观带,后期不会保留,会恢复成云湖别院叠墅区和小高层区域之间的马路,景观绿化会移植进小区内部。
图3,下沉式小区会所,泳池,私宴厅,健身区域,该有的都有,装装样子肯定是够了。会所功能对于大多数小区业主实用性不强,但有总比没有的逼格要高[偷笑R]。
图4,项目周边配套示意图,学校离的都很近,小学是锡师附小集团学校,初中是市一中附属初中。这个之前也介绍过,就不展开说了。
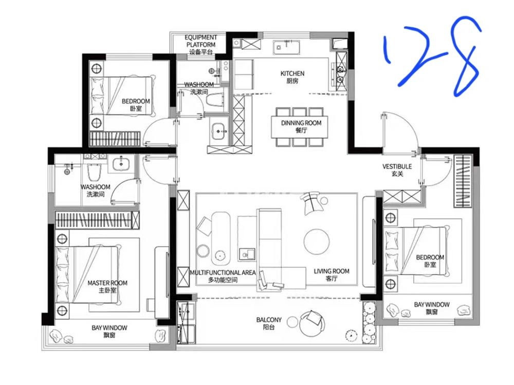
图5,项目首次开盘6栋小高层的沙盘摆位图,5号和9号楼是128平,3号和16号楼是151平(没做售楼处样板间),7号和15号楼是183平,这个户型的楼栋一楼是架空层,其他户型的楼栋没有架空层。所有户型都是两梯两户,有独立的一个入户空间。
[中深肤色R]
图6到图10,128平户型图及样板间照片。其实我是拍了视频的,但是现场人太多,视频里比较乱,所以还是放几张照片配文字吧(照片里我标注的都是开间尺寸)。128平的户型和华侨城运河湾的120平有些相似,但主要有两点优化。第一,6.6米横厅,餐客厅分离,增加了餐厅区域。第二,厨房开间3.9米,显大。其他方面中规中矩。
图10到图16,183平户型图和样板间照片,183平是4房3卫,客厅6.6米开间,外加一个家政间的布局。主要亮点是30平的主卧,开间达到6米。以前住惯私房的朋友,都喜欢有个大卧室,这个卧室够大了吧,1.8*2米的床放进去一点都不起眼。主卧卫生间布局对比其他大户型设计有点拥挤了,但问题不大。
图17和图18,这两张图我是想看一下网上说的采光影响,从图17的视角看,华发中央首府的高层对云湖别院最西侧一排房子有遮挡。但这个确实只是视角问题,从图18的正常视角看,两者间距离应该有100米左右,所谓华发对下午阳光的遮挡,基本是没有的。哈哈哈,我是本着事实求是的态度解释一下,不是充值的啊[偷笑R][偷笑R][偷笑R]。
好啦,大概情况就是这样,还有具体问题最近我开个直播聊聊吧。对比下经开区目前这些新房的情况。

















