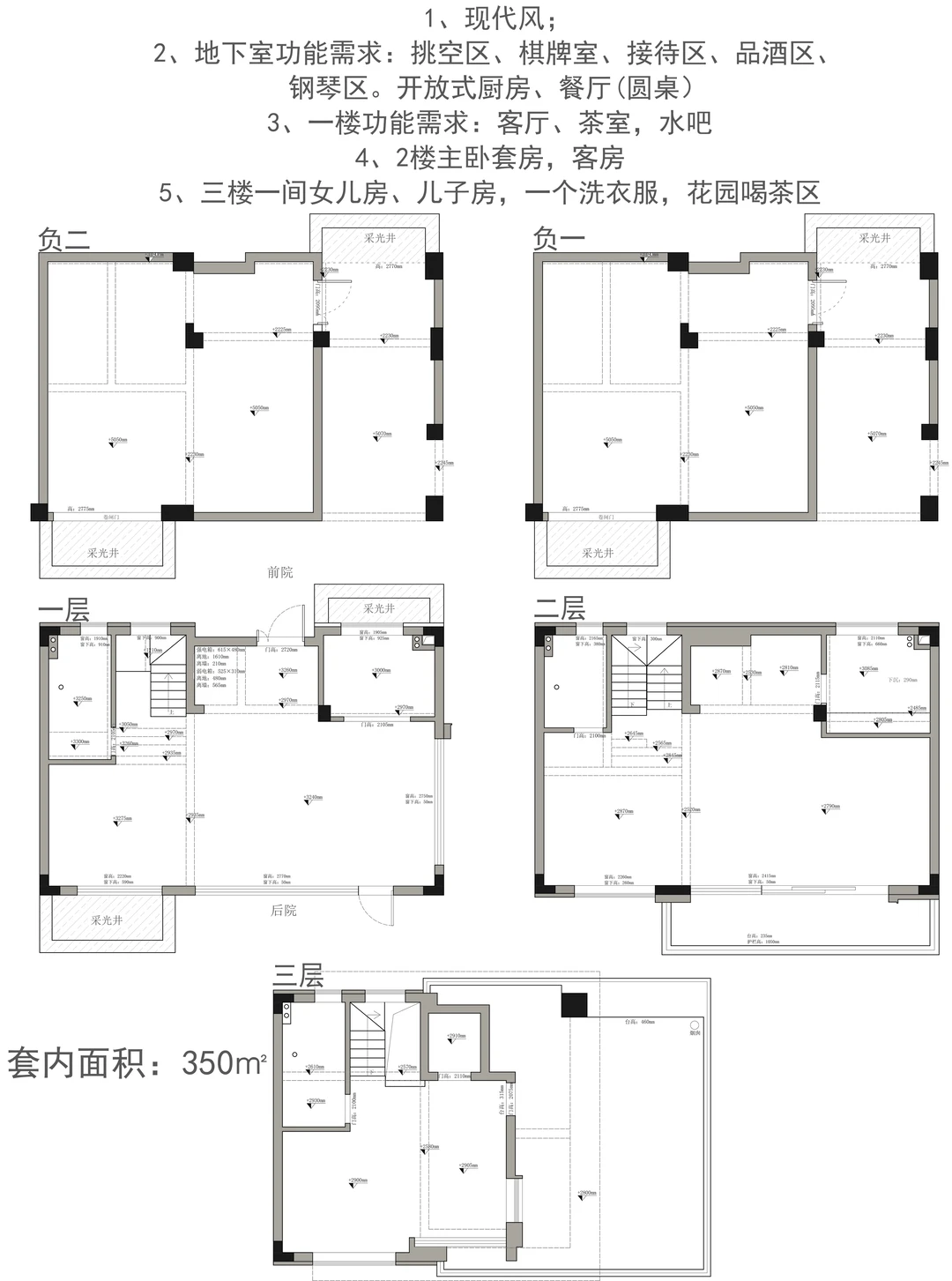
「iGo户型优化338期」
▪️ 项目概况
联排别墅|350㎡|5层
▪️ 设计核心
垂直分区 · 动静分离
让每一层,只服务于一类生活场景
▪️ 分层解析
B2|社交场
独立入户+酒柜+沙发区,回家即切换“待客模式”
B1|娱乐核
餐厨一体+钢琴区+棋牌室,聚餐动线一气呵成
F1|生活区
起居室+茶台,回归日常的松弛感
F2|休憩层
主人套房+客卧,绝对安静的私密领域
F3|成长阁
双儿童房+独立露台,给孩子一片不打扰的天地
▪️ 设计思考
别墅不是房间的堆砌,而是让每段时光都有归处
用垂直逻辑梳理生活,才能实现真正的“大宅从容”





