藏书网
户型优化|90平三居室,全能刚需房|四版方案
设计师人厘米酱
2025-12-02 00:12:21
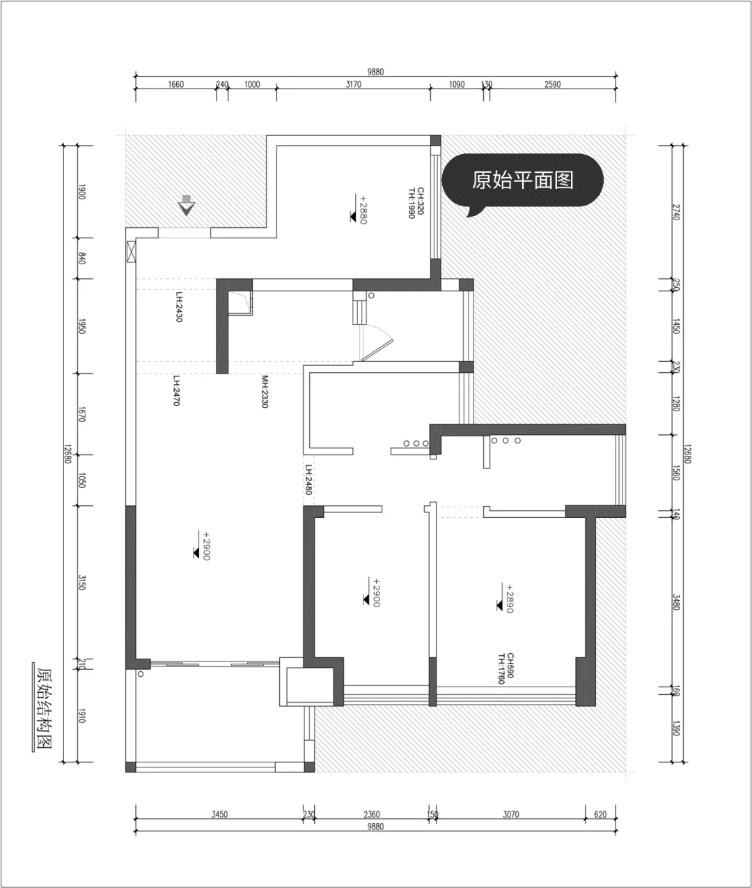
怎么去满足全能型三居室 一个房间也不能少,还要增加功能,加大空间 难难难! 设计需求: 四口之家,两个男孩都在读小学。需要规划小孩玩耍学习的功能,厨房太小,经常在家煮饭,厨房家电比较多希望能容纳厨房大小家电,没什么特殊忌讳,这边物业不给封阳台,可以考虑开放式厨房,卫生间门不对床就行。要是能有个梦幻衣帽间就最好了。
0
阅读:0
设计师人厘米酱
感谢大家的关注
作者最新文章
1
好想要一个浴缸!这个设计师有点厉害👍
2
谁说主卧就只能在这里!我家偏不这样
3
第一次买房子,先给爸妈,我爸妈喜欢分床睡
4
家里有个电竞房,我还是会去电竞酒店
5
老破小!没事哒,没事哒,改造一下就变新房
6
我把【租】来的房子变成我家!户型大改造
7
拯救入门对着主卧门的两种方法?你学会了吗
8
面食爱好者不会拒绝的大岛台设计【户型改造】
9
精装房改造|先从平面优化开始|
10
百套案例合集🏡定制你的艺术家居
热门分类
推荐
热榜
军事
NBA
体育
社会
明星八卦
娱乐
财经
科技
汽车
历史
国际
游戏
动漫
公益
搞笑
商业
互联网
数码
国际足球
房产
家居
时尚
科学探索
职场
育儿
股票
教育
影视
情感
热点
中国军情
武器
中国南海
中国足球
亚洲杯
科比
综合体育
CBA
投资
大咖秀
外汇
创业
风口
SUV
豪车
概念车
优惠
新能源
美国
欧洲
朝日韩
俄罗斯
孕期
街拍
婚姻
正能量
家居
TOP
1
这个房子的设计有点奇葩!不得不感叹真是一个敢设计,一个敢建。
2
师傅在厨房修水管,女主人站在一旁。
3
这个地板是有老婆选的?我真无语了?
4
房顶贴瓷砖属实是头一次见,不得不说,一个敢设计,一个敢施工,不服不行啊![赞]
5
宅家自拍,温暖冬日,粉色床单,舒适生活温柔卧室自拍休闲卧室自拍温柔床榻自拍
6
这算不算是砌墙的天花板。
7
浙江温州一男子装修房子,找来砸墙师傅,一问需要2600元,男子为省下2600元砸
8
拍大腿,本来想翘板这个的,地天板了
9
有牛的地方风水特好!老牛吃嫩草,
10
浴室写真摄影分享欲室浴室氛围感写真酷感浴室写真浴室写真时尚浴室写真
家居
最新文章
1
有网友说,这样的公寓属于比较完美的,你认同不?
2
我的小公寓,一直租给一个年轻姑娘,月租1800,她住两年一直挺省心,昨天突然找我
3
这个地板是有老婆选的?我真无语了?
4
优雅气质,绿意盎然,古典与现代的完美融合。
5
宅家自拍,温暖冬日,粉色床单,舒适生活温柔卧室自拍休闲卧室自拍温柔床榻自拍
6
这面墙怪得很,缝里露出来的东西是什么?
7
拍大腿,本来想翘板这个的,地天板了
8
16岁烤鸡少年睡地板也要当老板目标迈巴赫!刷到深圳烤鸡少年的故事,直接转
9
浙江湖州,女子9年前花416000元买下120平方米的毛坯房,谁料,装修好入住9
10
男人是不是都这样?还是只有我老公这样?我老公有个习惯越来越严重,有事没事都要看到